PRIPREMA DOKUMENTACIJE ZA LEGALIZACIJU

Vršimo pripremu i predaju dokumentacije elektronskim putem za potrebe upisa prava na objektima i stanovima po novom zakonu o legalizaciji objekata iz 2025 godine.

Naše Usluge

uslužno vršimo prijavu objekata i stanova ponovom zakonu 
 O POSEBNIM USLOVIMA ZA EVIDENTIRANJE I UPIS PRAVA NA NEPOKRETNOSTIMA

Izrada Elaborata

Pripremamo elaborat geodetskih radova za legalizaciju objekata.

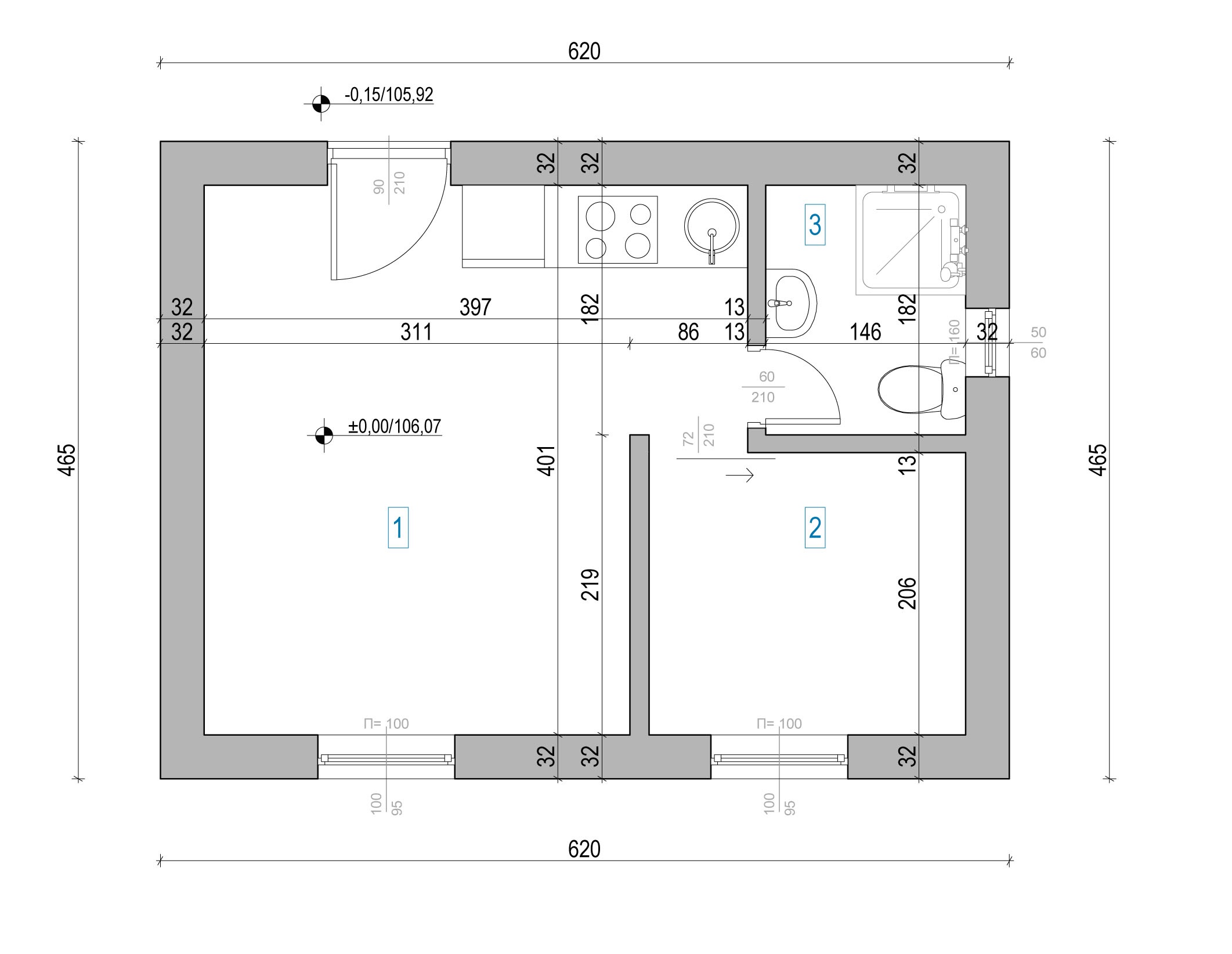
Skice Stanova

Izrađujemo skice stanova i objekata za potrebe određivanja kvadrature stanova i posebnih delova  objekata.

Priprema dokumentacije i prijava

Pružamo uslugu digitalizacije pravne dokumentacije i uslužnu predaju dokumentacije elektronskim putem za  legalizaciju objekata.

Superscript

Kako do upisa?

Da bi se nepokretnost upisala, potrebno je prijaviti objekat putem  digitalne platforme koju uspostavlja Agencija za prostorno planiranje i urbanizam (Agencija) uz podršku Republičkog geodetskog zavoda (RGZ).

Platforma će ukrštati podatke iz prijave sa podacima o objektima i vlasnicima iz javnih evidencija, da bi se utvrdili nosioci prava svojine.

Ceo postupak će se odvijati kroz faze:

faza 1

Opštine unose svoje zonong planove

na platforrmu u roku od 30 dana od stupanja Zakona na snagu. 

faza 2

Agencija proverava dostavljene podatke

u roku od 15 dana

faza 3

Građani potom, u roku od 60 dana, podnose prijave

preko platforme, za svaku nepokretnost pojedinačno.

faza 4

Agencija upoređuje podatke iz prijava i javnih evidencija 

i donosi odluku, ili obaveštava podnosioca ako je potrebno rešiti prethodna pitanja.

Ukoliko je odluka pozitivna 

Agencija izdaje potvrdu i dostavlja je RGZ-u koji vrši prioritetni upis prava svojine, bez obzira na prethodne postupke i bez naplate taksi i naknada.

Ukoliko je odluka negativna

Agencija bez odlaganja,elektronskim putem, obaveštava podpnosioca prijave i nadležnog građevinskog inspektora.

Ostali slučajevi 

Za objekte koji su izgrađeni na tuđem privatnom zemljištu, bez pravnog osnova-Agencija će pozvati podnosioca da uredi odnose sa vlasnikom zemljišta.

Privremeni objekti (npr. mobilne kuće, kontejneri, balon hale) biće evidentirani, bez upisa prava svojine.

Za objekte koji nisu prijavljeni, ili za koje postoje drugi autoritativni podaci – Agencija će doneti odluku u skladu sa raspoloživim podacima.

Zašto odabrati nas?


Pozitivne recenzije naših klijenata predstavljaju svakodnevni podsetnik da nastavimo sa odgovornim obavljanjem našeg posla, osiguravajući da se trudimo i dalje kako bismo ispunili njihova očekivanja. Ove povratne informacije ne samo da nas motivišu, već i potvrđuju da pravimo pravu razliku u životima naših korisnika.

naše recenzije  možete pronaći na Google mapama 

Kontaktirajte nas

Rado ćemo vam pomoći! Čekamo vaše pozive i poruke.

Gornjogradska 52a, Zemun, Beograd

+381 61 5157000

arhnenadbabic@gmail.com

Vikendom ne radimo; radnim danima od 9:00 do 17:00 časova

Legalizuj svoj objekat sa nama

Zakažite sastanak i osigurajte svoje pravo na objekat ili stan uz pomoć arhitektonskog biroa Design N. Kontaktirajte nas telefonom ili putem emaila.